365 Mayville Avenue, Brookline | Piatt Sotheby's International Realty
Offered At
$239,000
3 Beds
2 full 2 half Baths
1,744 sqftHome Size
0.07 acreLot Size

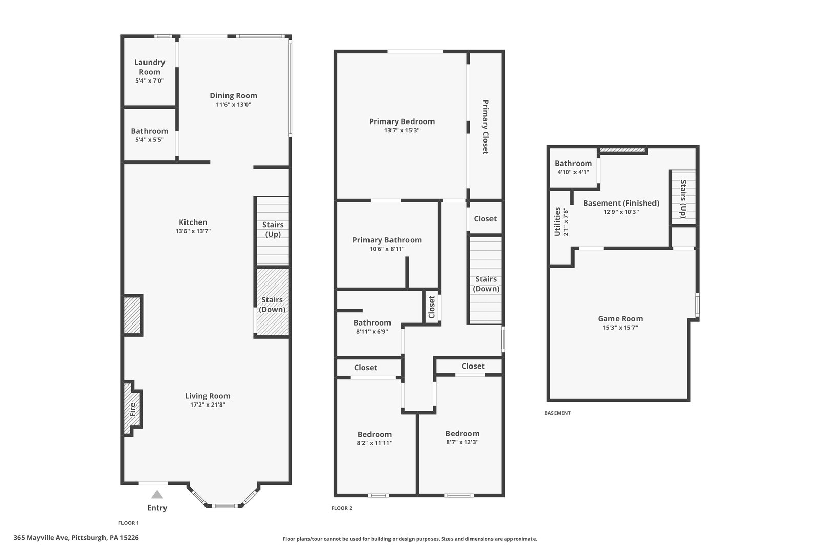
365 Mayville Avenue, Brookline

Brookline home stands as a rare hyper-functional property amongst neighborhood peers, offering a primary suite with dedicated full bath, main floor powder room and laundry, finished basement, and private parking! Mayville Avenue sets a convenient stage 3.5 miles to Downtown. The front porch presents a sweeping open-concept main floor. Highlights include a living room gas fireplace flanked by built-in cabinets, south facing bay window, and a kitchen complete with eat-in island and stone counters. The dining nook framed by floor to ceiling windows accesses a half bath, laundry room, and rear deck. Floor two hosts a primary suite with dual closets, soaring vaulted ceiling, and private balcony. Admire a ...

Features & Amenities

  • Central A/C
  • Fenced Yard
  • Granite Countertops
  • Deck
  • Porch
  • Skylight
  • 2 Fireplaces
  • Mixed
  • Tile
  • Eat-in Kitchen
  • Ceiling Fan(s)
  • Vaulted Ceilings
  • Center Island
  • Stall Shower
  • Tub and Shower
  • Bay/Bow Window
  • Jetted Tub
3D Tour
Floor Plans

Presented By

agent headshot
Emily Fraser
Company
Piatt Sotheby's International Realty
Phone
412-387-6886
Email
emily@fraserteam.com
License #
AB068700
365 Mayville Avenue
Pittsburgh, PA 15226

Get in touch

Send Inquiry
365 Mayville Avenue
Pittsburgh, PA 15226
Loading...
..